Projet Pierre & Lumière
La prestation :
Conception globale du rez-de-chaussée d’une maison de campagne
L’enjeu :
Créer des espaces de vie ouverts, lumineux et chaleureux
Description :
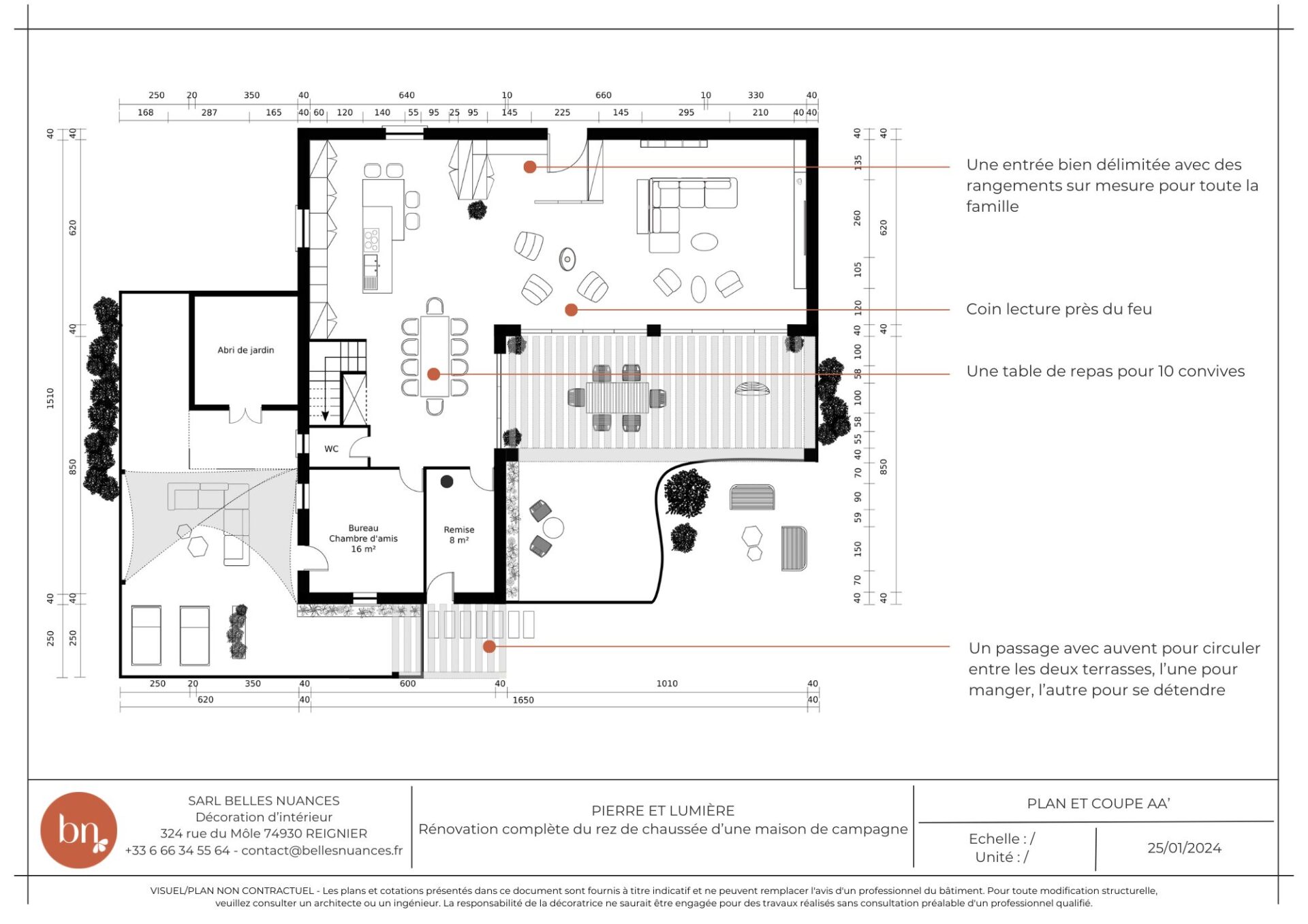
Aménagement complet pour ce rez-de-chaussée de 140 m2, situé dans une grande maison en pierre, dans le Sud de la France. A l’origine, le rez-de-chaussée était cloisonné avec plusieurs pièces distinctes, non communicantes. L’objectif des propriétaires était clair : créer un grand espace de vie convivial pour recevoir leurs proches. C’est pourquoi une solution s’est imposée :
faire tomber les cloisons existantes, non porteuses et créer des ouvertures sur l’extérieur. De nombreux aménagements intérieurs sur mesure, dans l’entrée, dans le salon et dans la cuisine structurent la circulation dans l’espace. Le travail de matière douces avec un camaïeu de beiges met en valeur les pierres apparentes existantes. Le jeu des sources de lumière souligne la noblesse des matériaux et des meubles aux formes épurées, pour une ambiance minimaliste et douce.
Type de projet :
Rénovation complète du rez-de-chaussée d’une maison de campagne
Décoratrice d’intérieur :
Léa Bonnin, Belles Nuances










